World Construction Today
Click here to subscribe to our newsletter
LiftEx
Online Newsletter
E-newsletter - Latest issue of World Construction Today
Latest News and Press Releases

Eco Innovation Group Opens New Green Construction Division.

Eco Innovation Group, an innovative company developing new technologies for green energy solutions, is excited to announce the launch of ECOX Spruce Construction, a Company subsidiary focused on sustainability industry construction projects...

READ MORE

Godrej launches Godrej GO TUFF Mobile App a customer centric innovation to digitize the future of the Construction Industry.

Godrej & Boyce announced that its business Godrej Construction has launched a customer service oriented mobile application called GO TUFF to streamline the supply chain management...

READ MORE

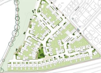
Hayfield appoints Spicerhaart to £31m eco-efficient development scheme

Hayfield has appointed Spicerhaart as selling agent on the new £31m Hayfield Park Scheme, an eco efficient development located within central Bedfordshire.

READ MORE

Corecon Technologies Announces DocuSign eSignature Integration with its Cloud Based Construction Software Suite.

Corecon Technologies announces a new integration with DocuSign eSignature for use within Corecon's cloud-based construction estimating, project management and job cost software suite.

READ MORE

MDOT, Heavy Construction Industry announce work zone safety awards.

The Michigan Department of Transportation and the heavy construction industry collaborated to announce Work Zone Safety Awards. MDOT, executives from contractors, industry associations, and consulting...

READ MORE

Intel to Construct Large Chip Plant in Ohio Using Sustainable Building Practices.

The initial project will be on a 926-acre site in Licking County near Columbus and will also aim to achieve net positive water use and zero total waste to landfills as part of Intel's 2030 sustainability goals...

READ MORE

Advertising:

neha@worldconstructiontoday.com

Phone: + 91 88268 49084


For the latest visit: www.worldconstructiontoday.com

World Construction Today